ペット可物件をずっと探していて、やっと見つかったという報告をしました。
ペット可の賃貸物件の探し方。いい物件をゲットするには条件設定とスピードがポイント。
明日、引越するんですが、その前にどんな物件なのか紹介したいと思います。
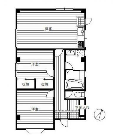
間取り

では間取りからです。
玄関を入るとまっすぐに廊下が伸びていて、右手にトイレ、洗面・風呂場があり、廊下正面にリビングダイニングがあります。
左手に手前から出窓のある8帖の部屋と寝室に使おうと思っている押し入れ付きの6帖の部屋があります。
ではそれぞれ紹介していきます。
玄関
玄関はステップ付きで上がりやすくなっています。
下駄箱もすべて新品です。

靴もたっぷり収納できます。
廊下
正面がリビングダイニング。
出窓の部屋

壁の1面だけが淡いグリーンの壁紙になっていて今風のデザインです。
この部屋は趣味や仕事の部屋にします。
寝室

次は寝室です。
ここも壁の1面だけが違う壁紙です。
なぜか黄ばんだ古いエアコンが付いています。

押し入れが一面にあります。
右側の押れの上段にはハンガーが掛けれられるようになっています。
基本、収納はここだけ。

リビングダイニング
ここも1面だけデザイン違いの壁紙。



キッチンは小さめ。
勝手口もありますw
洗面台
風呂
トイレ
デザイナーズ
基本的にどの部屋もダウンライトとダクトレールのスポットライト(もちろんLED)でおしゃれな感じに仕上げてあります。
洋室8帖と寝室はシーリングライトを取り付けられますが、ダウンライトなどがありますので急ぐ必要はありません。
新品でないものも
この物件、基本的にはリフォーム済みなんでほとんどの備品が新品なんですが、一部に新品でないものもありました。
寝室のエアコン
綺麗なリフォーム済みの物件に似合わない黄ばんだエアコン。

リモコンはありません。
コンセントに挿すと動き出したのですが、異音がずっと鳴ってます。
これでは使えないので、撤去してもらうことにしました。
消火器
勝手口に置いてあった消火器。
使用期限はきれて封印テープもなくなっています。
おまけに自転車置き場には同じような消火器が3つも置いてありました。
これも撤去してもらいます。
その他
トイレの換気扇や湯沸かし器など、細かいところで新品でないものもありました。
まあ、この広さでこの家賃、リフォーム済みならOKでしょう。
さて、明日は引越です。
2tトラック2台、作業員4名で来るそうです。
あ、ガスコンロは評判がいい、これ買いました。








